HOME
物件情報
建築施工事例
設備・仕様
会社案内
お問い合わせ
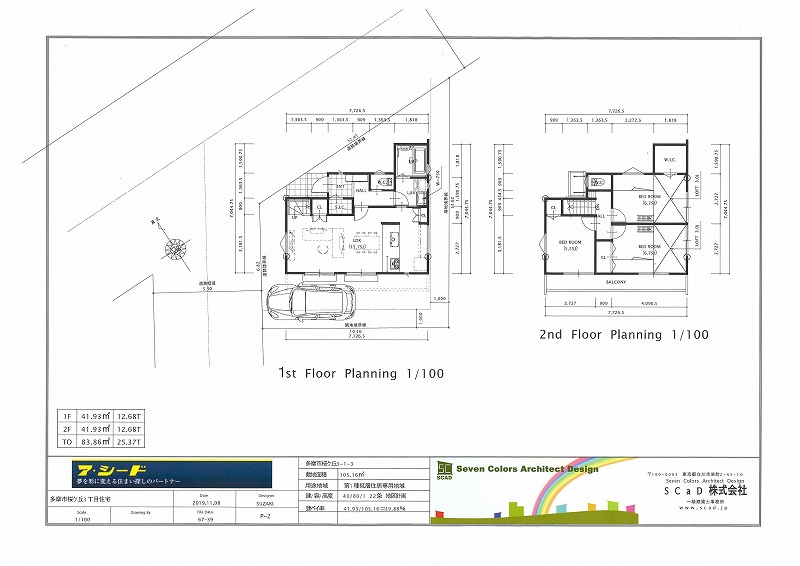
桜ケ丘3新築プラン
2019年12月02日
/* アイキャッチ /* アイキャッチ /* アイキャッチ